Just before you hit the bike only section of Point Grey Road at Alma you may have noticed that the corner lot is missing a lovely old heritage house. The lot sold for $4 million last year, and of course was advertised with a demolition permit and plan for a “brand new 2,800 sq.ft. house on a fantastic view lot” attached.

So sure was the realtor that no one would want a 1935 four-bedroom house that there wasn’t even a picture of it on the listing—just one of the ocean and mountains and of Hastings Mill Park across the street.
Real estate listing for 3691 Point Grey Road, 2015
And, shortly after it sold, it came down.
But this post isn’t about the rampant destruction of our heritage homes or our blatant disregard for stories and history, I wanted to find out more about the new house, the one that’s causing all the controversy. On the comment section of Vancouver Vanishes, the cube house that’s going up on the lot has been called a “bunker style building,” a “container,” “unfriendly and uninviting” and “doesn’t fit the neighbourhood.”

Since I’m a sucker for West Coast Modern architecture and willing to give this a shot, I called Tony Robins, the architect for the cube, who by the way, had nothing to do with the old house’s destruction.
“I wanted it to be leading-edge, modern architecture and I love the idea of a cube where the whole ground floor is glass,” he told me. “I’ve seen some comments that it’s too exclusive and it’s turning its back to the street, but actually the kitchen, dining, living-room is more open to the street than any other house on Point Grey Road. And how often does anyone see anyone in upstairs windows? Really it’s very pure, it’s meant to be a very modern house.”

Robins doesn’t know whether the owner will live in it because it’s already changed hands since the sale last year. But he says the old heritage house was in poor shape, and the original buyer, a realtor, wanted a new one.
And, he says, his cube house fits perfectly well into the neighbourhood.

“I don’t believe in doing fake heritage just because there’s some other fake heritage houses around,” he says, adding that he also designed the white house next door. “I believe that those houses are very intriguing and fit within the realm of every house being different along there.”

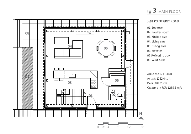
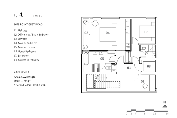
The cube house is black on the outside, but light and airy inside. There’s a massive skylight over the hallway and a deck off the master bedroom, and a hot tub on the roof top deck that is also the lid of the house.
I just hope that the new owners will live there long enough to create some stories.
Related:
© All rights reserved. Unless otherwise indicated, all blog content copyright Eve Lazarus.










Eve……I don’t care so much about the architecture of the ” inevitable ” new house……but I DO give a damn about whether these properties are going to be lived IN, ……by families………rather than purchased to be ” Flipped” by overseas ” Investors ” to make a buck………Eve, I am so fucking tired of our city being used as a repository for Money Launderers……Goddanmit!
I do not care for the style , it is not a great feat to design a box. As for what has happened to our real estate market, welcome to globalization. The Federal government should not allow foreign investors but then why are so many snowbirds allowed to buy property in warmer climates.
Personally I could never afford property in Vancouver (never mind Point Grey Road). The fact that the mayor allowed the wealthy home owners to close that road is disgusting. I would like to see a homeless camp set up in every square foot of available park land in that neighbourhood.
To me, the house does not look finished in this photo. Did a layer of stucco or something go over the black? It does not look like any landscaping was done either yet. I do not hate it, and I would imagine it gives max floor space. It is definitely a bold contrast to what was previously there. I saw another article recently about a new building that went around and above a heritage house and people did not seem to like that idea either.
I think it looks just AWFUL!!! I frequently have to pass this abomination on my way to Hastings Mill Museum. Why would anyone owning a view lot like that not want bedroom windows??!! Hopefully whoever ends up owning this monstrosity will at least put in a nice folksy flower garden to soften the effect! Been waiting for an opportunity to get this off my chest for months – thank you!
that is so ugly, what idiot would want everyone on the street peering in their house? they’re going to need a lot of draperies, it will look like a box with a skirt , and where did this architect get his schooling from, a Cracker Jack Box, pardon the pun, the real architects with style and class were the ones that designed the heritage buildings and homes we see here in Canada, check out W.A. Elliott, a Brandon Manitoba Architect, my great-grand father; his buildings have been designated heritage sites , and have been standing since the early 1900’s, will this child’s box stand 20 years before it falls? I doubt it 🙂
just want to add, all the old Heritage house needed was some fresh landscaping and a new fence, the house itself was obviously well maintained; what a waste
Something is so wrong in this birthplace of mine.
I liked the old house. I like the new house. What I don’t like is the way things (houses,cars,cameras..) are just tossed away. I wonder how long Robin’s places will stand.
I love the design, it’s very modern and stark. The whole bottom floor has windows, and there are skylights in the top. It actually fits quite well with the modern White House next door. I prefer a bold daring design like this instead of the ugly, soulless cookie cutter stucco monster houses being built in the neighbourhood.
I agree, Jeff……my only concern is will it actually be lived in by a family………or used as a money launderers investment to be ” flipped”..
I lived in this house!! It was beautiful..The old lady that owned it (geez wished my memory was better) ran a foster home out of it.From here I moved on my own so that was 1979. Right front window was my bedroom 🙂
Its finished. And its great! http://www.3691pointgreyroad.com
Proof that great design can sometimes be in the box.
That is a monstrosity that is not a home I am sickened by this
It’s exceedingly ugly.
“the old heritage house was in poor shape” – gee, how many times have we heard that one? I love modern houses, in fact, I live in one. But this house is totally inappropriate for the neighborhood – and a middle finger to anyone passing by an architect who’s a disgrace to his profession.